Používame cookies

Súbory cookie a ďalšie technológie sledovania používame na zlepšenie vášho zážitku z prehliadania našich webových stránok, na to, aby sme vám zobrazovali prispôsobený obsah a cielené reklamy, na analýzu návštevnosti našich webových stránok a na pochopenie toho, odkiaľ naši návštevníci prichádzajú. Viac info

 

Nehnuteľnosti s ikonickou architektúrou v Dubaji v projekte Meydan

Interné ID: 275984
Ulica: Dubaj
Druh: Byty
Typ: Predaj
Typ bytu: Rekreačný apartmán
Iné:
419 000 €

Popis nehnuteľnosti

Projekt sa nachádza na výhodnom mieste v blízkosti Dubai Creek a Meydan. Projekt sa nachádza na Ras Al Khor, jednej z najdôležitejších hlavných ciest v meste, a susedí s Ras Al Knor Wildlife Park a Dubai Creek Tower, krásnou dominantou mesta. Projekt ponúka aj panoramatický výhľad na prírodu a Dubaj. Nehnuteľnosti na predaj v Meydan, Dubaj sa nachádzajú 10 minút od medzinárodných škôl, 12 minút od medzinárodného letiska Dubaj, 15 minút od Burj Khalifa a centra mesta a 25 minút od Palm Jumeirah.

Projekt pozostáva z piatich 30-65-poschodových obytných veží a má sa stať jednou z ikonických architektonických dominánt mesta. Vo vnútri komplexu sa nachádza 18-jamkové golfové ihrisko, ktoré vytvára spoločenskú atmosféru a výhľad do zelene. Súčasťou komerčných nehnuteľností v rámci projektu budú kaviarne a reštaurácie, v ktorých sa budú podávať chutné jedlá svetovej kuchyne. Súčasťou každej obytnej veže bude vyhliadková terasa s neopakovateľným výhľadom na Dubaj.

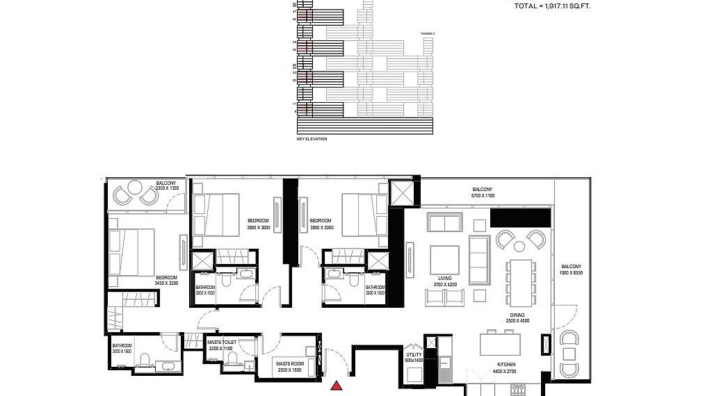
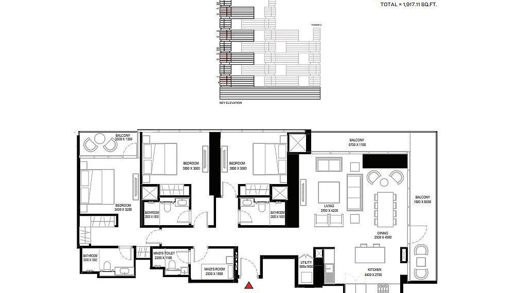
Každý apartmán na predaj je vybavený vlastnou kúpeľňou, šatňou, spoločnou toaletou a práčovňou. Súčasťou nehnuteľností sú kuchyne s otvoreným priestorom. Nehnuteľnosti s 2, 3 a 4 spálňami majú ďalšiu spálňu a kúpeľňu pre slúžku spolu s pracovňou a úložným priestorom. K mezonetom patria terasy. Všetky nehnuteľnosti budú pripravené na kľúč s kuchyňami vybavenými skrinkami a bielymi spotrebičmi.

Pre viac informácií ohľadom možnosti investovania a následných výnosov kontaktujte makléra.
Kompletnú ponuku investičných nehnuteľností nájdete na stránke investicne-reality.sk

Vlastnosti

Status:
aktívne
Vlastníctvo:
osobné
Stav:
novostavba
Úžitková plocha:
66 m2
Počet podlaží:
12
Balkón:
áno
Počet kúpeľní:
1
Výťah:
áno
Zateplený objekt:
áno
Status:
aktívne
Vlastníctvo:
osobné
Stav:
novostavba
Úžitková plocha:
66 m2
Počet podlaží:
12
Balkón:
áno
Počet kúpeľní:
1
Výťah:
áno
Zateplený objekt:
áno

Informatívna úverová kalkulačka

Pozrieť na mape

Maklér

Radi Vám poradíme

Podobné nehnuteľnosti