Používame cookies

Súbory cookie a ďalšie technológie sledovania používame na zlepšenie vášho zážitku z prehliadania našich webových stránok, na to, aby sme vám zobrazovali prispôsobený obsah a cielené reklamy, na analýzu návštevnosti našich webových stránok a na pochopenie toho, odkiaľ naši návštevníci prichádzajú. Viac info

 

Dvojizbový byt so záhradou, druhý rad od mora, Ugljan, ostrov Ugljan

Interné ID: I30095
Ulica: Ugljan
Druh: Byty
Typ: Predaj
Typ bytu: 2-izbový byt
Iné:
380 000 €

Popis nehnuteľnosti

Krásny dvojizbový byt v novej budove, ktorý sa nachádza v druhom rade od mora a upravenej pláže, blízko mora aj centra mesta.

Byt sa nachádza na prízemí budovy, ktorá je momentálne vo výstavbe a plánované dokončenie je do konca roku 2025. Investor ponúka rôzne možnosti financovania.

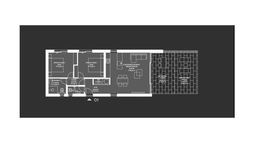
Vnútorný priestor bytu má rozlohu 68 m², pričom terasy pridávajú ďalších 32 m², takže celková vypočítaná plocha je 100 m². Byt pozostáva z dvoch spální, každá o veľkosti 12 m², kúpeľne s rozlohou 5 m², chodby, hosťovskej toalety, úložného priestoru a otvorenej obývacej izby s jedálenskou časťou a kuchyňou s rozlohou 30 m².

Z obývacej izby je nádherný výhľad na more a prístup na terasu s rozlohou 32 m², z čoho 16 m² je krytých. Nekrytá časť terasy vedie do upravenej záhrady s rozlohou 145 m².

Do ceny je zahrnutá záhrada, dodatočný úložný priestor mimo bytu a parkovacie miesto.

Výborná lokalita a blízkosť všetkých zariadení robia z tohto bytu skvelú investíciu.

Ostrov Ugljan sa často nazýva „zeleným ostrovom“ vďaka starým olivovým hájom a idylickým zátokám s malebnými rybárskymi prístavmi. Je dobre prepojený so Zadrom prostredníctvom viac ako 10 trajektových a katamaránových liniek denne počas celého roka.

Najväčšie mesto na ostrove, Ugljan, sa nachádza na severozápadnej časti ostrova. Návštevníkom ponúka mnoho skrytých zátok a nezabudnuteľnú prírodnú krásu na každom kroku, spolu s množstvom nádherných piesočnatých a skalnatých pláží.

Ostrov Ugljan je oddelený od pevniny Zadarským kanálom a spojený s ostrovom Pašman mostom ponad prieplav Mali Ždrelac.

Pre viac informácií ohľadom možnosti investovania a následných výnosov kontaktujte makléra.
Kompletnú ponuku investičných nehnuteľností nájdete na stránke investicne-reality.sk

Vlastnosti

Status:
aktívne
Vlastníctvo:
osobné
Stav:
novostavba
Úžitková plocha:
100 m2
Počet izieb:
2
Balkón:
nie
Počet kúpeľní:
1
Zateplený objekt:
nie
Status:
aktívne
Vlastníctvo:
osobné
Stav:
novostavba
Úžitková plocha:
100 m2
Počet izieb:
2
Balkón:
nie
Počet kúpeľní:
1
Zateplený objekt:
nie

Informatívna úverová kalkulačka

Pozrieť na mape

Maklér

Radi Vám poradíme

Podobné nehnuteľnosti