Používame cookies

Súbory cookie a ďalšie technológie sledovania používame na zlepšenie vášho zážitku z prehliadania našich webových stránok, na to, aby sme vám zobrazovali prispôsobený obsah a cielené reklamy, na analýzu návštevnosti našich webových stránok a na pochopenie toho, odkiaľ naši návštevníci prichádzajú. Viac info

 

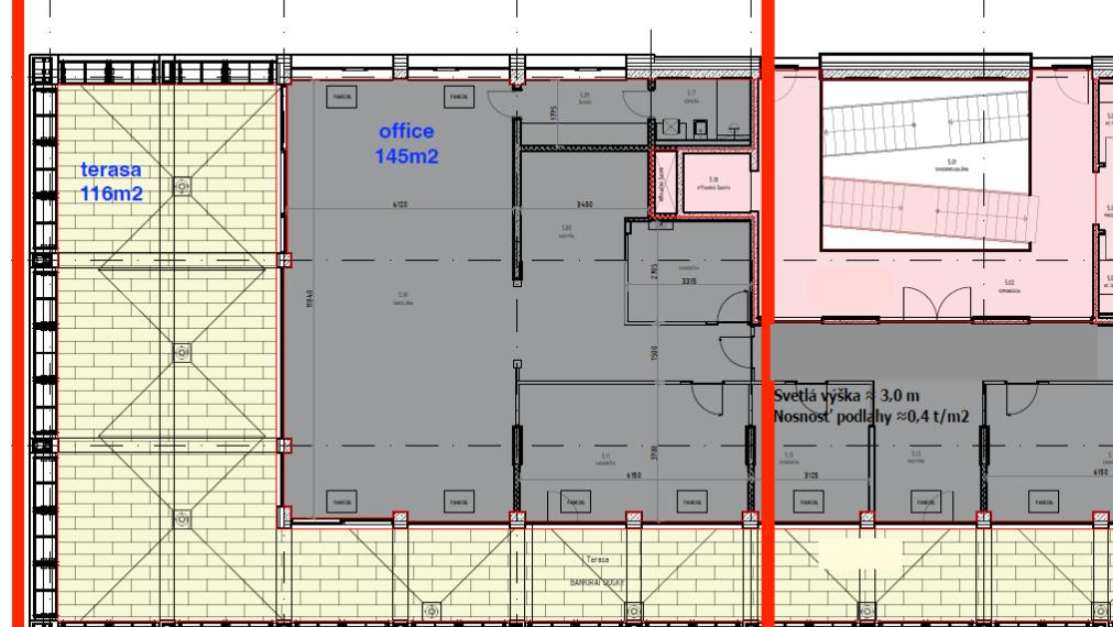
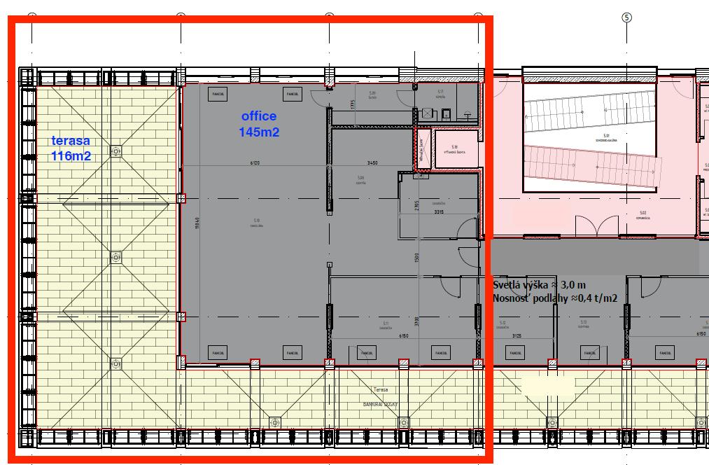
Exkluzívne 145m2 administratívne priestory s panoramatickou terasou 116m2

Ulica: Vlčie hrdlo
Obec: Bratislava-Ružinov
Okres: Bratislava II
Kraj: Bratislavský kraj
Druh: Objekty
Typ: Prenájom
Typ objektu: Kancelárie
10,50 €/m2/mesiac

Popis nehnuteľnosti

Ponúkame na prenájom dizajnové kancelárske priestory v reprezentatívnej budove vo Vlčom Hrdle, Bratislava 2.

K dispozícií je exkluzívny 145m2 celok kancelárií na najvyššom 5.NP (aj výťah).

Administratívny celok sa dispozične delí na svetlý open-space so vstupom na rozsiahlu 116m2 terasu, veľkú presklenú zasadačku, menšiu zasadaciu miestnosť/kanceláriu, kuchynku s posedením, chodbu s úložným priestorom a kúpeľňu so sprchovým kútom.

K priestorom je možné prenajať dostatočné množstvo parkovacích státí priamo pred budovou.
Cena za parking 50€/miesto/mesiac + DPH.

Voľné po dohode.

Nájomné za priestory 10,50€/m2/mesiac + prevádzkové náklady 3,50€/m2/mesiac a energie na základe spotreby + DPH.

K cene sa bude pripočítavať nájomné za terasu.

Kaucia 2-mesačné nájomné vr. prevádzkových nákladov a DPH.

Záujemca neplatí províziu.

Viac informácii u uvedeného realitného manažéra.

Vlastnosti

Status:
aktívne
Vlastníctvo:
firemné
Stav:
novostavba
Úžitková plocha:
145 m2
Balkón:
nie
Výťah:
áno
Energetický certifikát:
A
Status:
aktívne
Vlastníctvo:
firemné
Stav:
novostavba
Úžitková plocha:
145 m2
Balkón:
nie
Výťah:
áno
Energetický certifikát:
A

Pozrieť na mape

Maklér

Radi Vám poradíme

Podobné nehnuteľnosti