Používame cookies

Súbory cookie a ďalšie technológie sledovania používame na zlepšenie vášho zážitku z prehliadania našich webových stránok, na to, aby sme vám zobrazovali prispôsobený obsah a cielené reklamy, na analýzu návštevnosti našich webových stránok a na pochopenie toho, odkiaľ naši návštevníci prichádzajú. Viac info

 

Kancelárie pri ceste do Pezinka na prenájom, Rybničná-Vajnory

Ulica: Rybničná
Obec: Bratislava-Vajnory
Okres: Bratislava III
Kraj: Bratislavský kraj
Druh: Objekty
Typ: Prenájom
Typ objektu: Kancelárie
724,35 €/mesiac

Popis nehnuteľnosti

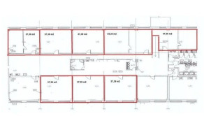
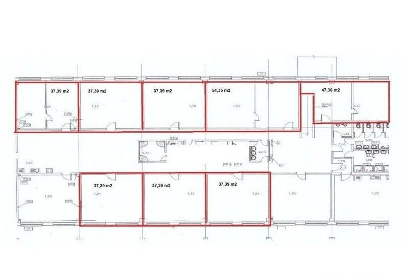
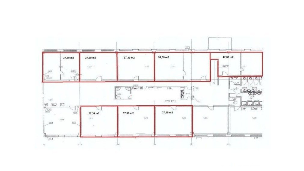
Ponúkame na prenájom kancelárie v administratívnej budove na Rybničnej ulici, vo Vajnoroch.

K dispozícií sú priestory na 2.NP (bez výťahu):

Openspace kancelária 37,39m2 + 4,49m2 podiel na spoločných priestoroch. (Cena nájmu vr. prevádzkových nákladov je 498,37€ + elektrika + DPH),

2-kancelária 47,36m2 + 5,68m2 podiel na spol. priestoroch (Cena nájmu vr. prevádzkových nákladov je 631,18€ + elektrika + DPH),

2-kancelária 54,35m2 + 6,52m2 podiel na spol. priestoroch (Cena nájmu vr. prevádzkových nákladov je 724,35€ + elektrika + DPH).

Toalety, kuchynka a zasadačka sú zdieľané na chodbe.

Výhodou je dostatok parkovacích možností priamo pred objektom, BEZPLATNE.

Nájomné je 7 €/m2/mesiac + prevádzkové náklady vo výške 4,90 €/m2/mesiac + elektrika (rozpočítaná podľa m2 plochy) + DPH.
Ceny sú uvedené bez DPH.

Záujemca neplatí províziu.

Viac informácii u uvedeného realitného manažéra.

Vlastnosti

Status:
aktívne
Vlastníctvo:
firemné
Stav:
úplne prerobený
Úžitková plocha:
54.35 m2
Balkón:
nie
Energetický certifikát:
B
Zateplený objekt:
nie
Status:
aktívne
Vlastníctvo:
firemné
Stav:
úplne prerobený
Úžitková plocha:
54.35 m2
Balkón:
nie
Energetický certifikát:
B
Zateplený objekt:
nie

Pozrieť na mape

Maklér

Radi Vám poradíme

Podobné nehnuteľnosti