Používame cookies

Súbory cookie a ďalšie technológie sledovania používame na zlepšenie vášho zážitku z prehliadania našich webových stránok, na to, aby sme vám zobrazovali prispôsobený obsah a cielené reklamy, na analýzu návštevnosti našich webových stránok a na pochopenie toho, odkiaľ naši návštevníci prichádzajú. Viac info

 

248,5m2 priestor v centre na Lazaretskej/Cintorínskej, Staré Mesto

Ulica: Lazaretská
Obec: Bratislava-Staré Mesto
Okres: Bratislava I
Kraj: Bratislavský kraj
Druh: Objekty
Typ: Prenájom
Typ objektu: Kancelárie
12,80 €/m2/mesiac

Popis nehnuteľnosti

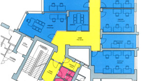
Ponúkame na prenájom uzavretý priestor na Lazaretskej/Cintorínskej ulici v centre Bratislavy, Staré Mesto.

K dispozícii je samostatný celok o celkovej ploche 248,5 m² umiestnený na 2.poschodí(3.NP) s výťahom, ktorý sa skladá z viacerých samostatných miestností, vlastnej kuchynky, delených toaliet a serverovne.

Priestory majú výhľad do átria budovy a na Lazaretskú ulicu.

Prístup do budovy 24/7.

Celok je možné upraviť (pri dlhodobom nájme, min. 5 rokov) podľa požiadaviek klienta. Doba príprav je 2-3 mesiace, v závislosti od náročnosti úprav.

Možnosť prenájmu parkovacích státí v susednom objekte. Cena za 1 parkovacie státie 150€/mesiac.

Kaucia 3-mesačné nájomné.

Cena nájmu je od 12,80 €/m²/mesiac + prevádzkové náklady a energie vo výške cca 4 €/m²/mesiac + DPH. 1x ročne vyúčtovanie PN..
Ceny sú uvedené bez DPH.

Záujemca neplatí províziu.

Viac informácii v našej RK.

Vlastnosti

Status:
aktívne
Vlastníctvo:
firemné
Stav:
úplne prerobený
Úžitková plocha:
248.5 m2
Balkón:
nie
Energetický certifikát:
B
Zateplený objekt:
nie
Status:
aktívne
Vlastníctvo:
firemné
Stav:
úplne prerobený
Úžitková plocha:
248.5 m2
Balkón:
nie
Energetický certifikát:
B
Zateplený objekt:
nie

Pozrieť na mape

Maklér

Radi Vám poradíme

Podobné nehnuteľnosti