Používame cookies

Súbory cookie a ďalšie technológie sledovania používame na zlepšenie vášho zážitku z prehliadania našich webových stránok, na to, aby sme vám zobrazovali prispôsobený obsah a cielené reklamy, na analýzu návštevnosti našich webových stránok a na pochopenie toho, odkiaľ naši návštevníci prichádzajú. Viac info

 

Na predaj nebytový priestor vo výbornej Lokalite na Dobrovského ulici

Ulica: Dobrovského
Obec: Bratislava-Staré Mesto
Okres: Bratislava I
Kraj: Bratislavský kraj
Druh: Objekty
Typ: Predaj
Typ objektu: Obchodné priestory
128 000 €

Popis nehnuteľnosti

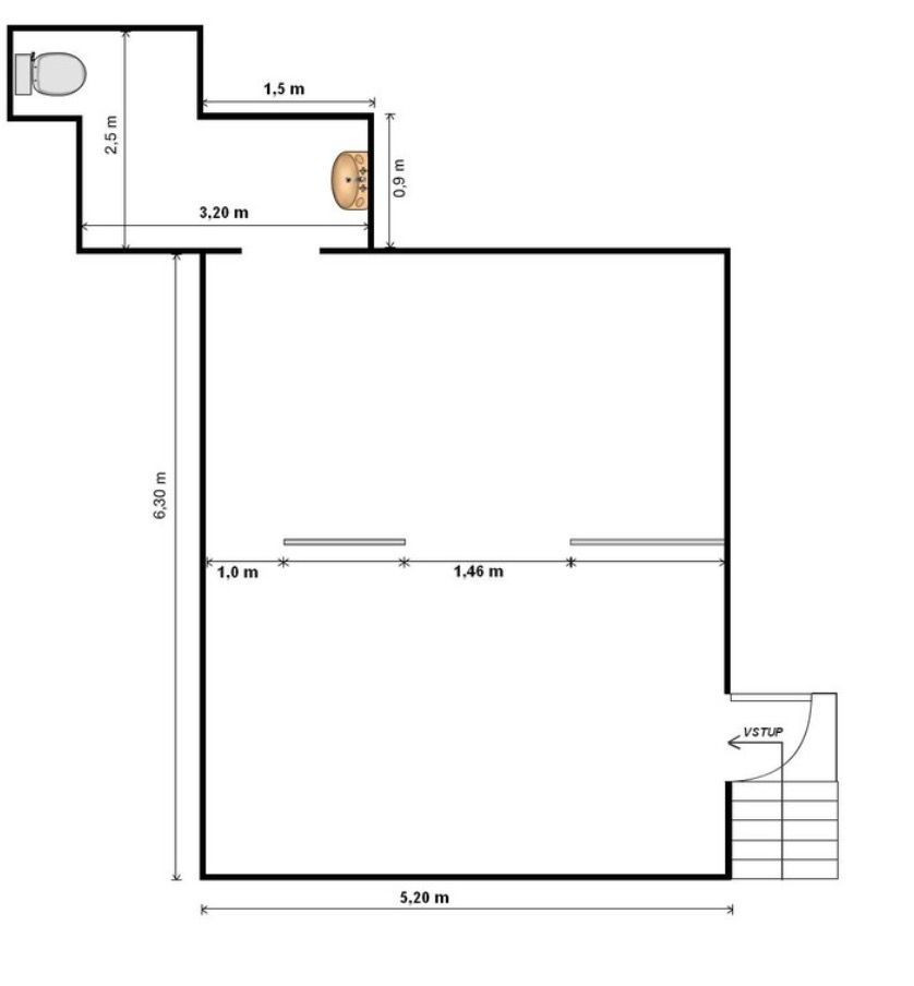
"Ponúkame Vám na predaj nebytový priestor vo výbornej Lokalite na Dobrovského ulici, oproti Dvom Levom v Starom Meste

Priestor bol využívaný ako Tetovacie štúdio, potom ako reštaurácia... a momentálne ako sklad a priestor na eshop.

Rozloha je 37,22m2. K priestoru patrí spoluvlastnícky podiel na dvore, má prípojku na upc, boiler na teplú vodu....

Priestor je možné zmeniť na bytový a využívať ho ako byt, má vlastný vstup.

Cena energií: 50 EUR/mesiac

Cena nehnutelnosti je 128 000 EUR + provízia RK."

Vlastnosti

Status:
aktívne
Stav:
úplne prerobený
Úžitková plocha:
37 m2
Balkón:
nie
Zateplený objekt:
nie
Status:
aktívne
Stav:
úplne prerobený
Úžitková plocha:
37 m2
Balkón:
nie
Zateplený objekt:
nie

Informatívna úverová kalkulačka

Pozrieť na mape

Maklér

Radi Vám poradíme

Podobné nehnuteľnosti