Používame cookies

Súbory cookie a ďalšie technológie sledovania používame na zlepšenie vášho zážitku z prehliadania našich webových stránok, na to, aby sme vám zobrazovali prispôsobený obsah a cielené reklamy, na analýzu návštevnosti našich webových stránok a na pochopenie toho, odkiaľ naši návštevníci prichádzajú. Viac info

 

Skladový priestor na prenájom - Bratislava III

Obec: Bratislava-Vajnory
Okres: Bratislava III
Kraj: Bratislavský kraj
Druh: Objekty
Typ: Prenájom
Typ objektu: Sklady a haly
1 350 €/mesiac

Popis nehnuteľnosti

Na prenájom moderný skladový / výrobný priestor v polyfunkčnom areáli na Starej Vajnorskej ul. Areál je lokalizovaný na konci Starej Vajnorskej – v blízkosti nových showroomov – oproti konečnej električiek. Perfektná dostupnosť s výjazdom na diaľnicu, resp. výpadovku smer Ivanka pri Dunaji.

Areál má kamerový systém, SBS, nonstop vrátnicu, priestory postupne prechádzajú modernizáciou – bezprašné podlahy, kúrenie, klimatizácia, automatické vstupné brány.

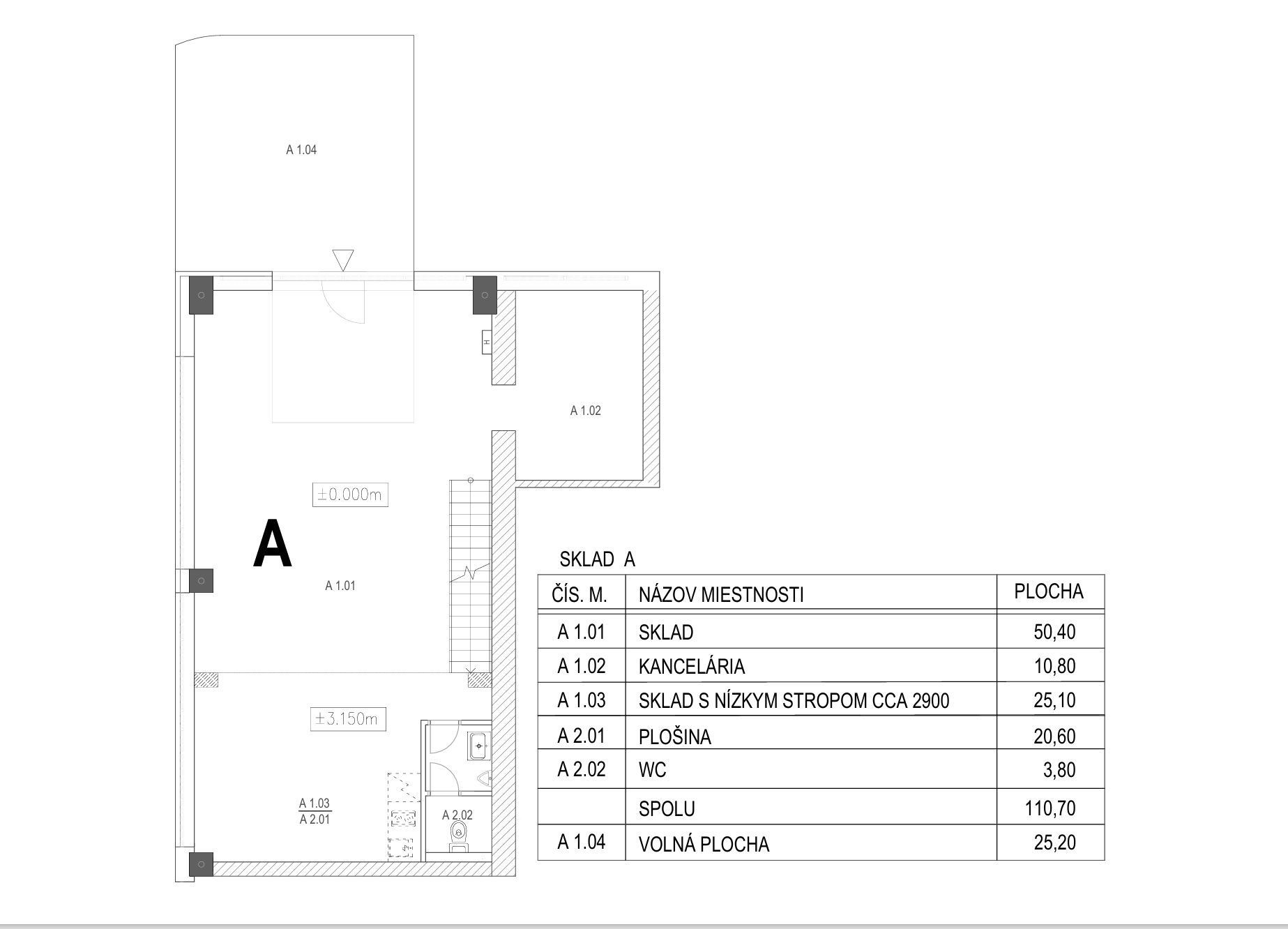
Celková úžitková plocha 110,7 m2 (sklad 86,3 m2, plošina office + zázemie 24,4 m2) + voľná plocha pred skladom 25,2 m2 (dve parkovacie miesta)

Voľný ihneď

Rozmery brány: šírka 300 cm, výška 330 cm
Kúrenie: samostatné s vykurovacou jednotkou Monzun
Strážna služba: 0,3 EUR/m²
Parkovacie miesto: 60 EUR bez DPH

Nájomné: 1350 EUR bez DPH / mesiac
V cene sú dve parkovacie miesta pre halou
Energie podľa spotreby (samostatne merateľné)
Províziu pre RK nájomca neplatí
Zábezpeka vo výške celkového trojmesačného nájmu

Vlastnosti

Status:
aktívne
Stav:
úplne prerobený
Úžitková plocha:
110.7 m2
Počet podlaží:
1
Balkón:
nie
El. napätie:
nie
Voda:
nie
Kanalizácia:
nie
Status:
aktívne
Stav:
úplne prerobený
Úžitková plocha:
110.7 m2
Počet podlaží:
1
Balkón:
nie
El. napätie:
nie
Voda:
nie
Kanalizácia:
nie

Pozrieť na mape

Maklér

Radi Vám poradíme

Podobné nehnuteľnosti