Používame cookies

Súbory cookie a ďalšie technológie sledovania používame na zlepšenie vášho zážitku z prehliadania našich webových stránok, na to, aby sme vám zobrazovali prispôsobený obsah a cielené reklamy, na analýzu návštevnosti našich webových stránok a na pochopenie toho, odkiaľ naši návštevníci prichádzajú. Viac info

 

Polyfunkčná budova na predaj Bratislava 3, Staviteľská ulica

Interné ID: 276606
Ulica: Staviteľská
Obec: Bratislava-Rača
Okres: Bratislava III
Kraj: Bratislavský kraj
Druh: Objekty
Typ: Predaj
Typ objektu: Iné
Cena v RK

Popis nehnuteľnosti

Reality Bratislava ponúka na predaj pekný a upravený zabehnutý areál s kancelárskymi, obchodnými a ubytovacími zariadeniami v lokalite Rača Žabí majer na ulici Staviteľská v Bratislave  III ,mestská časť Rača.

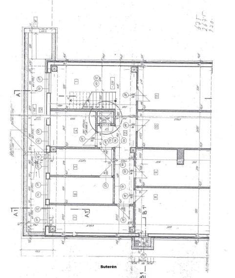
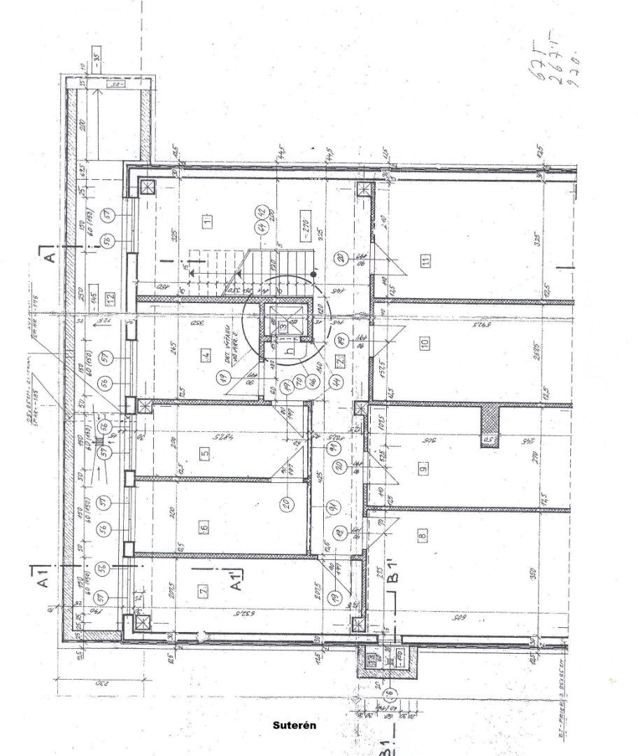
Na pozemku o výmere 2314 m2 sa nachádza podpivničená budova s tromi nadzemnými podlažiami, ktorá prešla kompletnou rekonštrukciou v roku 2014. Areál je celý oplotený a disponuje veľkým parkoviskom pred budovou. V budove sa nenachádza výťah.

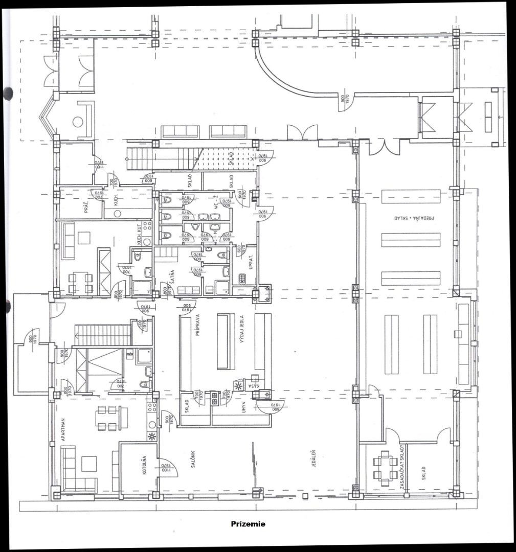
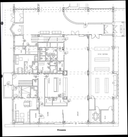
Polyfunkčná budova podlahovej plochy 1474 m2 plus 171 m2  suterénnych priestorov, je na prízemí o podlahovej ploche 681 m2 využívaná na gastro prevádzku, administratívu, obchodné prevádzky, recepciu a  2  ubytovacie zariadenia apartmánového typu s vlastným vstupom.

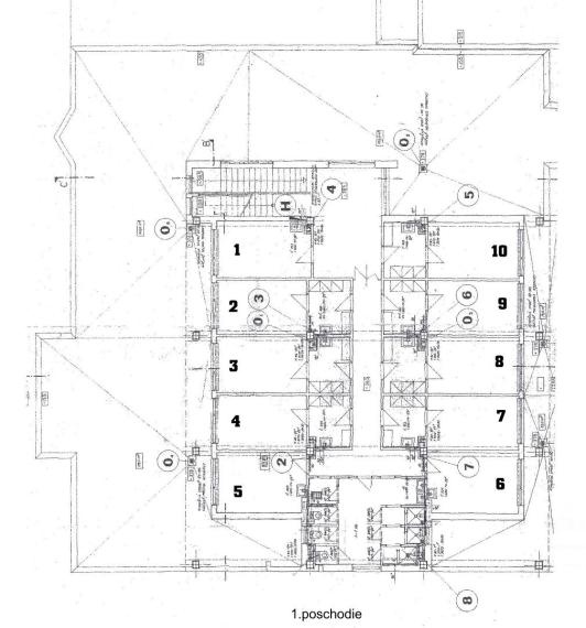
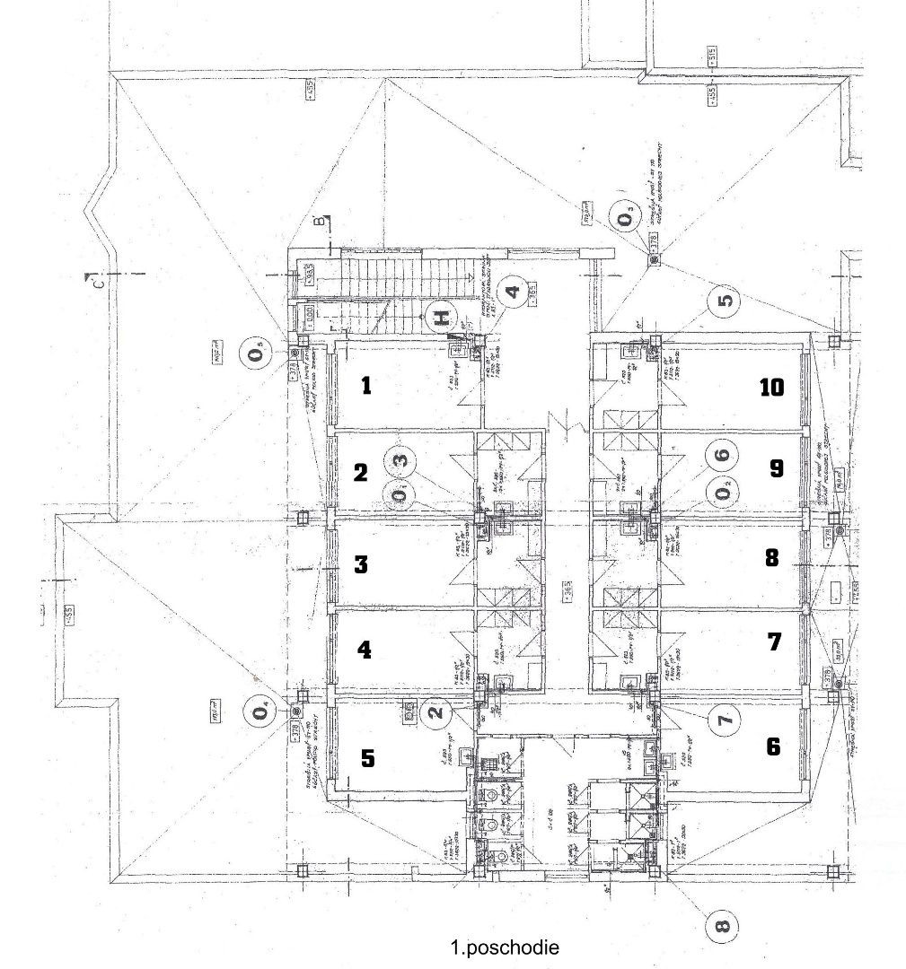
Na 1. a 2. nadzemnom podlaží  je situovaná centrálna chodba so schodiskom a ubytovacími zariadeniami so sociálnym zariadením a balkónmi. Spolu na dvoch podlažiach budova disponuje 20 izbami. Pozemok momentálne disponuje cca 30 parkovacími miestami.

Areál je napojený na verejné rozvody, kanalizáciu, plyn a rozvody NN.

Budovy zodpovedajú estetickým, hygienickým a ekologickým normám pre ubytovacie zariadenia.

Štandardom sú teplá voda, kúrenie, klimatizácia, elektrika, TV, wifi, rádio, bezpečnostné zariadenia, požiarna bezpečnosť, mini-práčovňa formou samoobsluhy. Pekný areál s ubytovacími službami je rokmi zabehnutý a fungujúci. Výhodou je dostatok parkovacích miest priamo pred budovou.

K dispozícii ihneď s existujúcimi nájomcami, alebo po vysporiadaní.

Priestory Vám radi predstavíme na obhliadke.  Viac informácii u uvedeného makléra.

CENA V RK.

Vlastnosti

Status:
aktívne
Vlastníctvo:
osobné
Stav:
úplne prerobený
Úžitková plocha:
1474 m2
Počet podlaží:
3
Balkón:
nie
Výťah:
nie
Zateplený objekt:
áno
Status:
aktívne
Vlastníctvo:
osobné
Stav:
úplne prerobený
Úžitková plocha:
1474 m2
Počet podlaží:
3
Balkón:
nie
Výťah:
nie
Zateplený objekt:
áno

Pozrieť na mape

Maklér

Radi Vám poradíme

Podobné nehnuteľnosti