Používame cookies

Súbory cookie a ďalšie technológie sledovania používame na zlepšenie vášho zážitku z prehliadania našich webových stránok, na to, aby sme vám zobrazovali prispôsobený obsah a cielené reklamy, na analýzu návštevnosti našich webových stránok a na pochopenie toho, odkiaľ naši návštevníci prichádzajú. Viac info

 

Veľkorysý komerčný priestor na prenájom v Bratislave V

Ulica: Hálova
Obec: Bratislava-Petržalka
Okres: Bratislava V
Kraj: Bratislavský kraj
Druh: Pozemky
Typ: Prenájom
Typ pozemku: Pozemky - komerčné
Iné:
4 000 €/mesiac

Popis nehnuteľnosti

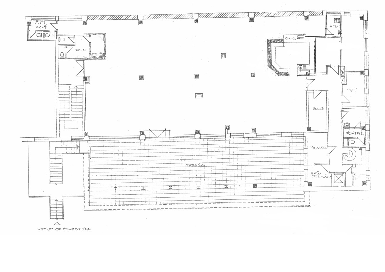
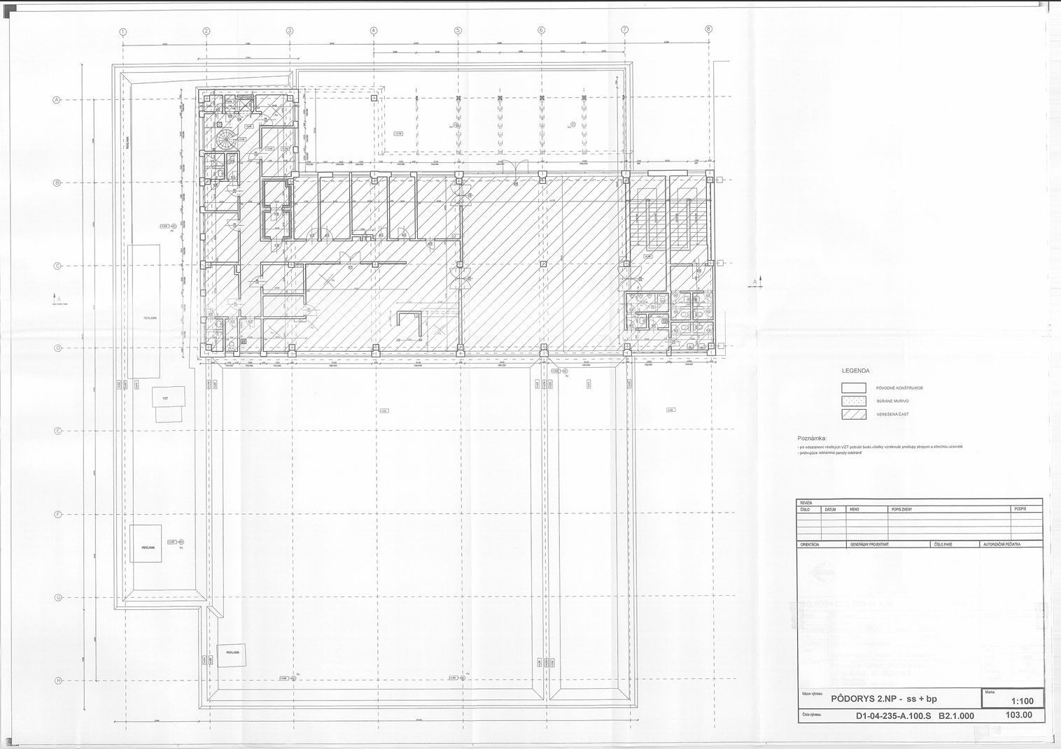
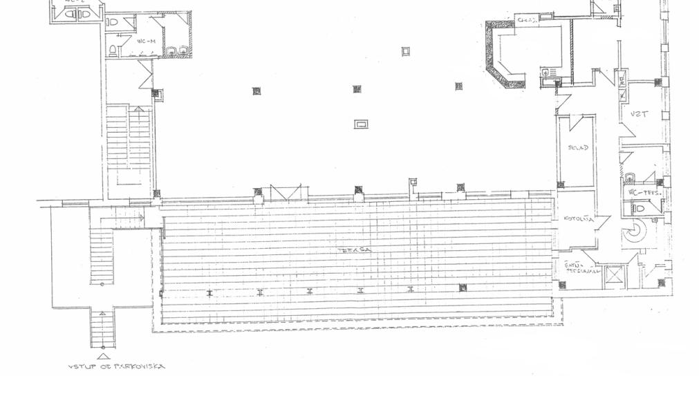
Ponúkame na prenájom veľkorysý komerčný priestor s výmerou približne 600 m² s terasou vo vyhľadávanej lokalite Petržalka – Hálova ulica, v rámci mesta Bratislava.
Priestor sa nachádza na 1. nadzemnom podlaží a vďaka veľkej otvorenej ploche ponúka flexibilné dispozičné riešenie, ktoré je možné prispôsobiť podľa potrieb nájomcu. Významnou výhodou objektu je komfortné zásobovanie cez rampu s výťahom a skladovým priestorom priamo pri nakládke, čo výrazne zjednodušuje logistiku prevádzky.
Základné údaje
výmera: cca 600 m²
podlažie: NP a 1. nadzemné podlažie
veľký open-space priestor
priestranná terasa po celej dĺžke objektu
zásobovacia rampa pre nakládku a vykládku tovaru
nákladný výťah na prepravu tovaru
skladové priestory priamo pri vstupe z rampy
samostatné sociálne zariadenia (muži / ženy)
technické miestnosti
viacero vstupov do priestoru
možnosť úprav dispozície podľa potrieb nájomcu
Možnosti využitia
Priestor je vďaka svojej výmere a dispozícii vhodný napríklad pre:
fitness alebo wellness centrum
showroom alebo predajný priestor
moderné kancelárie alebo coworking
vzdelávacie alebo tréningové centrum
tanečné, športové alebo pohybové štúdio
zdravotnícke zariadenie alebo rehabilitačné centrum alebo kliniku
e-shop, distribučné alebo skladovo-predajné priestory
Lokalita
Priestor sa nachádza v dynamicky rozvinutej časti Petržalka, ktorá patrí medzi najväčšie rezidenčné zóny v Bratislava. Lokalita ponúka výbornú dopravnú dostupnosť do centra mesta aj na hlavné dopravné ťahy, ako aj kompletnú občiansku vybavenosť v bezprostrednom okolí, dobrú dostupnosť verejnej dopravy a v neposlednej rade bezproblémové parkovanie priamo pri
Cena prenájmu: 4 000 € / mesiac bez DPH
Cena: 4 000 € / mesiac bez DPH cca 6,67 € / m²
Podrobnosti o podmienkach prenájmu radi poskytneme na vyžiadanie.
Kontakt
V prípade záujmu o viac informácií alebo dohodnutie obhliadky nás neváhajte kontaktovať na telefónnom
čísle 0948 742 777, alebo mailom: vasickova@reality.ba
Radi vám priestor osobne predstavíme.

Vlastnosti

Status:
aktívne
Plocha pozemku:
1500 m2
El. napätie:
230V
Kanalizácia:
ČOV
Status:
aktívne
Plocha pozemku:
1500 m2
El. napätie:
230V
Kanalizácia:
ČOV

Pozrieť na mape

Maklér

Radi Vám poradíme

Podobné nehnuteľnosti