Používame cookies

Súbory cookie a ďalšie technológie sledovania používame na zlepšenie vášho zážitku z prehliadania našich webových stránok, na to, aby sme vám zobrazovali prispôsobený obsah a cielené reklamy, na analýzu návštevnosti našich webových stránok a na pochopenie toho, odkiaľ naši návštevníci prichádzajú. Viac info

 

Obchodný/gastro priestor na prenájom, Obchodná/Hurbanovo Námestie, Bratislava-Staré Mesto

Ulica: Obchodná
Obec: Bratislava-Staré Mesto
Okres: Bratislava I
Kraj: Bratislavský kraj
Druh: Objekty
Typ: Prenájom
Typ objektu: Obchodné priestory
Cena v RK

Popis nehnuteľnosti

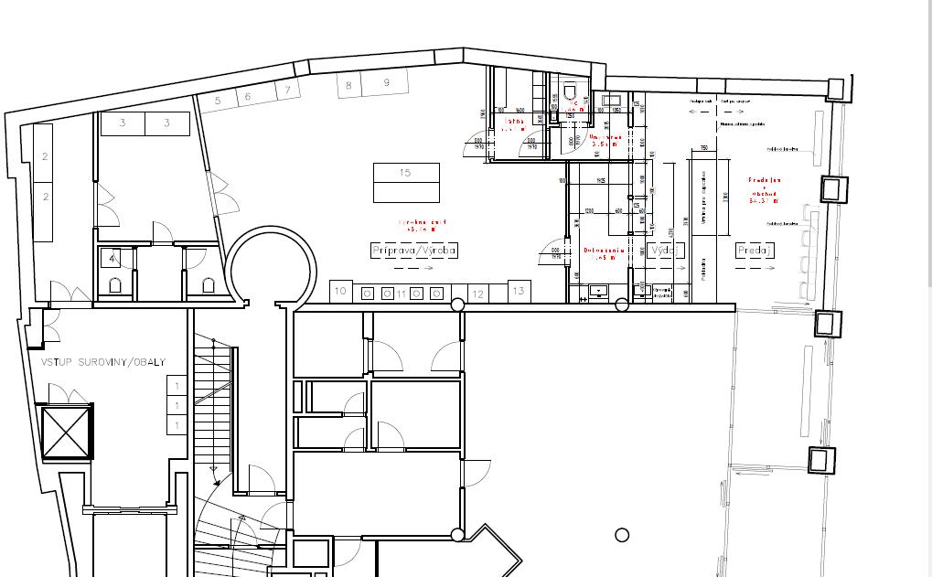
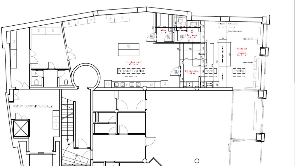
Ponúkame na prenájom obchodný/gastro priestor, na rohu Obchodnej ulice a Hurbanovho námestia, v Starom Meste, Bratislava 1.

Priestor má cca 130m2 a nachádza v kompletne zrekonštruovanej a reprezentatívnej budove.

Dispozícia: Predajňa časť + obchod, výrobňa/pripravovňa, šatňa, kúpeľňa + wc a zázemie.

Predošlí nájomca cukráreň spojená s výrobou dezertov.

Cena nájmu dohodou + prevádzkové náklady 6 €/m²/mesiac + vlastná spotreba energií + DPH. Ceny sú uvedené bez DPH.

Finálna cena bude špecifikovaná pri obchodnom rokovaní.

Kaucia 3-mesačné nájomné vr. prevádzkových nákladov a DPH.

Viac informácii u uvedeného realitného manažéra.

Záujemca neplatí províziu RK.

Vlastnosti

Status:
aktívne
Vlastníctvo:
firemné
Stav:
úplne prerobený
Úžitková plocha:
130 m2
Balkón:
nie
Status:
aktívne
Vlastníctvo:
firemné
Stav:
úplne prerobený
Úžitková plocha:
130 m2
Balkón:
nie

Pozrieť na mape

Maklér

Radi Vám poradíme

Podobné nehnuteľnosti