Používame cookies

Súbory cookie a ďalšie technológie sledovania používame na zlepšenie vášho zážitku z prehliadania našich webových stránok, na to, aby sme vám zobrazovali prispôsobený obsah a cielené reklamy, na analýzu návštevnosti našich webových stránok a na pochopenie toho, odkiaľ naši návštevníci prichádzajú. Viac info

 

Priemyselný areál s výrobnými halami, Beluša, okres Púchov

Ulica: M. R. Štefánika
Obec: Beluša
Okres: Púchov
Kraj: Trenčiansky kraj
Druh: Objekty
Typ: Prenájom
Typ objektu: Kancelárie
3 €/m2/mesiac

Popis nehnuteľnosti

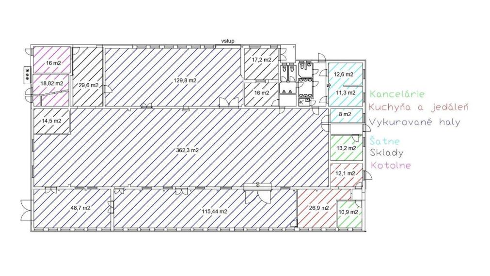
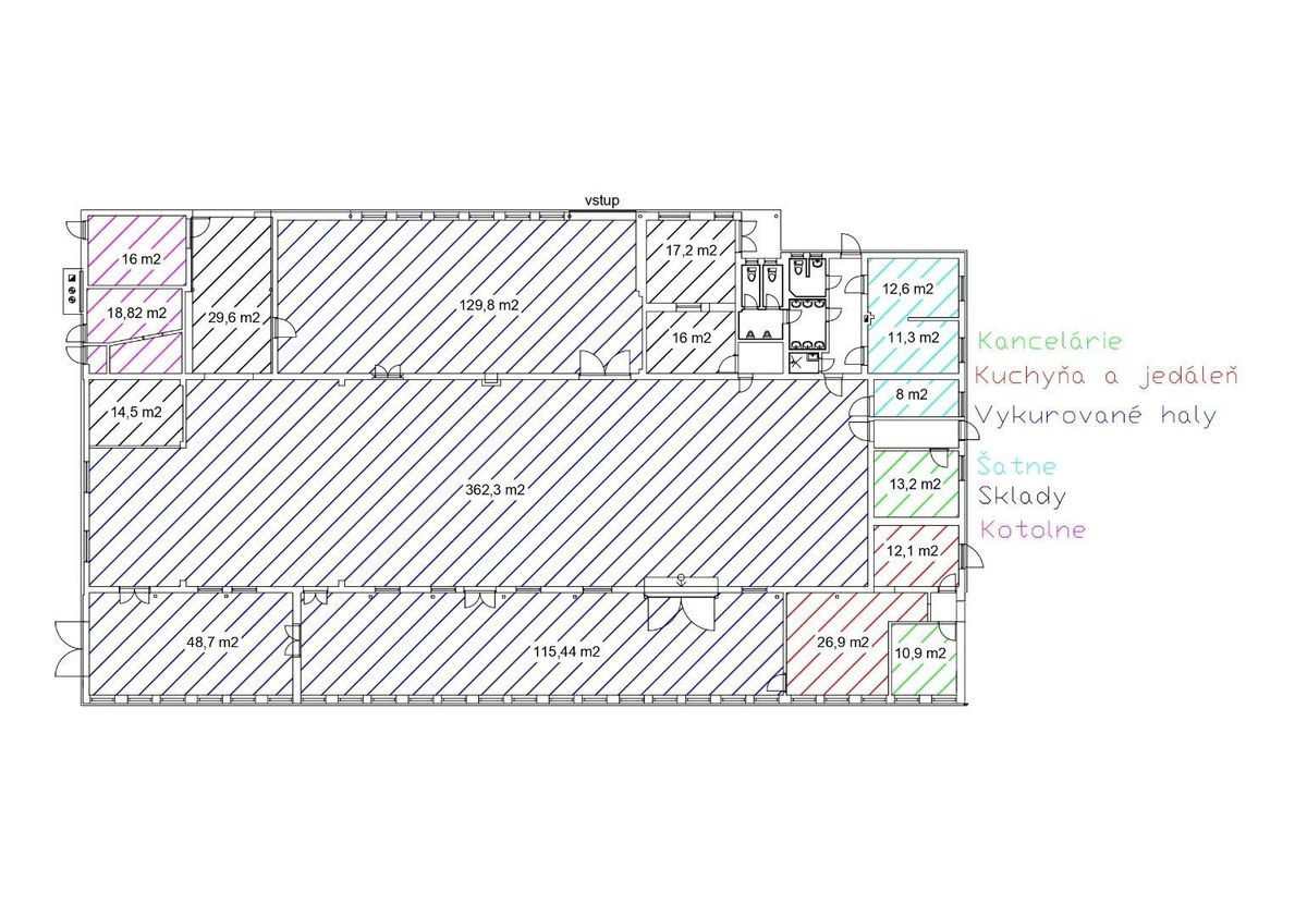
Ponúkame na prenájom priemyselný areál v Beluši, situovaný v strategickej lokalite v blízkosti diaľnice D1. Areál je ideálny pre výrobné alebo logistické prevádzky a ponúka kombináciu výrobných hál, skladových priestorov a administratívnej budovy.

Parametre nehnuteľnosti:
Celková výmera pozemku: 3 057 m²
Úžitková plocha vnútorných priestorov: 1 660 m²
Zastrešený prístrešok: 65 m²
Stav: udržiavaný, čiastočne rekonštruovaný
Materiál stavby: murovaný objekt
Podlaha: liaty betón (hrúbka 20 cm)

Výrobné priestory:
Vykurované aj nevykurované haly
Kúrenie na tuhé palivo + predpríprava na plyn
53 ks prípojok na stlačený vzduch
Elektrické prípojky 380 V
Odsávanie prachu a pilín

Internet: optická sieť

Objekt je napojený na vodovod, odpad riešený žumpou
Areál je oplotený, vybavený alarmom

Administratíva a zázemie:
Sociálne zariadenia, šatne, kuchynka, jedáleň
Administratívna budova: 6 kancelárií (3 prízemie + 3 poschodie)

Logistika a prístup:
Spevnená plocha vhodná na manipuláciu a nakládku/vykládku kamiónov (13,6 LKW)
Vlastné Parkovanie v rámci areálu
Výborná dopravná dostupnosť – priame napojenie na D1

Cena prenájmu:
Vykurované haly: 5 €/m²/mesiac + DPH + energie
Nevykurované haly: 3 €/m²/mesiac + DPH + energie
Kancelárie: 6 €/m²/mesiac + DPH + energie

Možnosť prenajať jednotlivé časti podľa potreby a prispôsobiť priestory špecifickým požiadavkám nájomcu

Pre viac informácií alebo obhliadku kontaktujte makléra.

Vlastnosti

Status:
aktívne
Stav:
pôvodný
Úžitková plocha:
3057 m2
Balkón:
nie
Zateplený objekt:
nie
Status:
aktívne
Stav:
pôvodný
Úžitková plocha:
3057 m2
Balkón:
nie
Zateplený objekt:
nie

Pozrieť na mape

Maklér

Radi Vám poradíme

Podobné nehnuteľnosti