Používame cookies

Súbory cookie a ďalšie technológie sledovania používame na zlepšenie vášho zážitku z prehliadania našich webových stránok, na to, aby sme vám zobrazovali prispôsobený obsah a cielené reklamy, na analýzu návštevnosti našich webových stránok a na pochopenie toho, odkiaľ naši návštevníci prichádzajú. Viac info

 

Hala pre ľahkú výrobu 123 m2

Ulica: Belá
Obec: Trenčín
Okres: Trenčín
Kraj: Trenčiansky kraj
Druh: Objekty
Typ: Prenájom
Typ objektu: Sklady a haly
5 €/m2/mesiac

Popis nehnuteľnosti

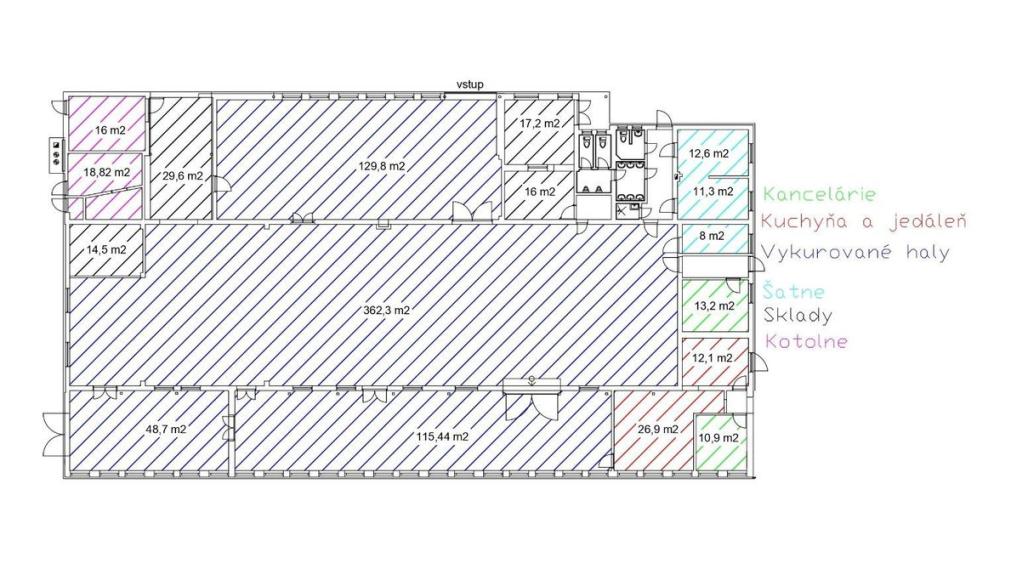
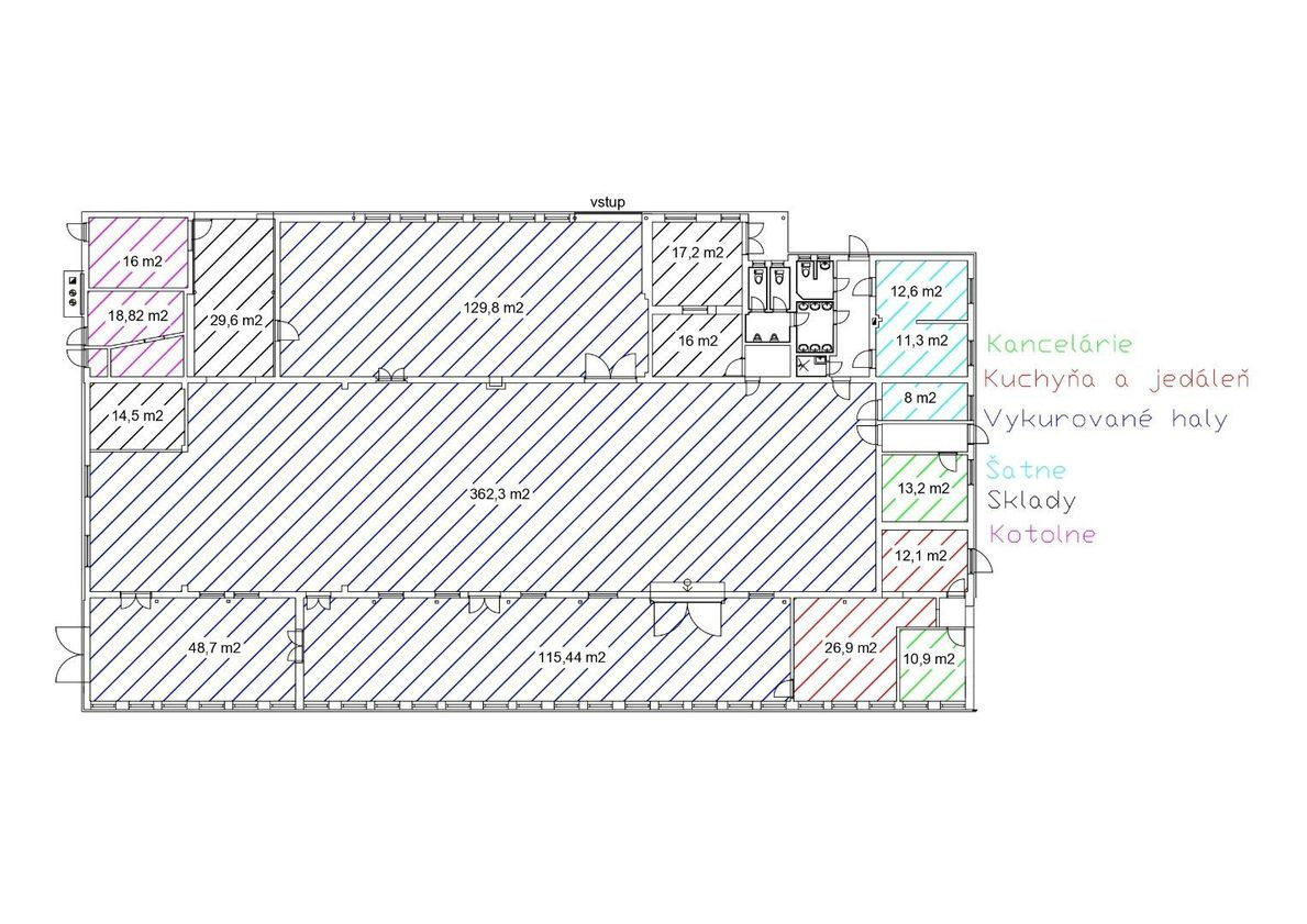
Ponúkame na prenájom skladové priestory v priemyselnom areáli v Beluši s výbornou dostupnosťou z diaľnice D1. Priestory sú vhodné na skladovanie, logistiku alebo ľahkú výrobu.

Na skladovanie je možné použiť:

- Vykurované priestory - 470 m2

- Nevykurované (zateplená strecha) - 211 m2

- Zastrešený prístrešok: 65 m²

Stav: udržiavaný, čiastočne rekonštruovaný

Materiál stavby: murovaný objekt

Podlaha: liaty betón (hrúbka 20 cm)

Výrobné priestory:

Vykurované aj nevykurované haly

Kúrenie na tuhé palivo + predpríprava na plyn

53 ks prípojok na stlačený vzduch

Elektrické prípojky 380 V

Odsávanie prachu a pilín

Internet: optická sieť

Objekt je napojený na vodovod, odpad riešený žumpou

Areál je oplotený, vybavený alarmom

Administratíva a zázemie:

Sociálne zariadenia, šatne, kuchynka, jedáleň

Administratívna budova: 6 kancelárií (3 prízemie + 3 poschodie)

Logistika a prístup:

Spevnená plocha vhodná na manipuláciu a nakládku/vykládku kamiónov (13,6 LKW)

Vlastné parkovanie v rámci areálu

Výborná dopravná dostupnosť – priame napojenie na D1

Cena prenájmu:

Vykurované haly: 5 €/m²/mesiac + DPH + energie

Nevykurované haly: 3 €/m²/mesiac + DPH + energie

Kancelárie: 6 €/m²/mesiac + DPH + energie

Možnosť prenajať jednotlivé časti podľa potreby a prispôsobiť priestory špecifickým požiadavkám nájomcu

Pre viac informácií alebo obhliadku kontaktujte makléra.

Vlastnosti

Status:
aktívne
Stav:
čiastočne prerobený
Úžitková plocha:
1660 m2
Balkón:
nie
Zateplený objekt:
nie
Status:
aktívne
Stav:
čiastočne prerobený
Úžitková plocha:
1660 m2
Balkón:
nie
Zateplený objekt:
nie

Pozrieť na mape

Maklér

Radi Vám poradíme

Podobné nehnuteľnosti